CARLO PIACENTINI
Home
Progetti
Contatti
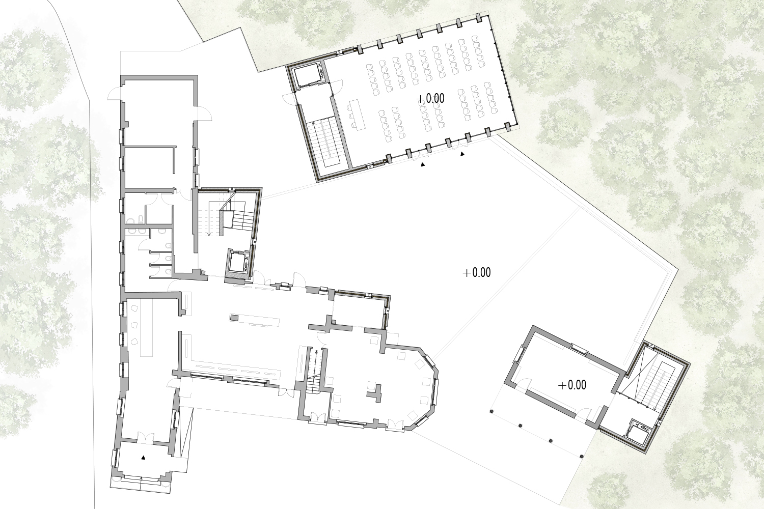
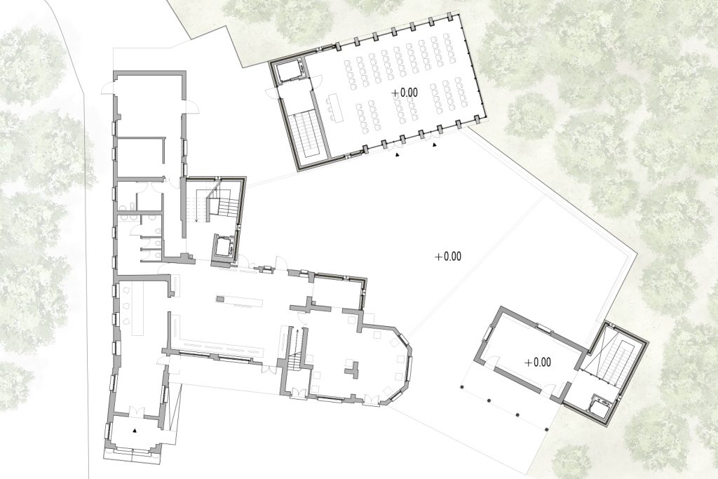
Ampliamento del Museo Castiglioni nel parco di villa Toeplitz
Varese, 2020
Progetto accademico.
Tutti i progetti